Dieselkäyttöinen siirrettävä ilmakompressori

Dieselkäyttöinen siirrettävä ilmakompressori

Atlas Copco tarjoaa sinulle ammattimaisen dieselkäyttöisen siirrettävän ilmakompressorin. Tämä yksikkö koostuu kahdesta tehokkaasta kompressorikomponentista, dieselmoottorista, jäähdytyksestä, ilman/öljyn erotus- ja ohjausjärjestelmästä, korkea järjestelmän luotettavuus ja yhden kompressorin laaja käyttöalue. Olemme ammattimainen ilmakompressorien valmistaja ja toimittaja Kiinassa. Tervetuloa konsultoimaan ja ostamaan.

Lähetä kysely

Tuotteen Kuvaus

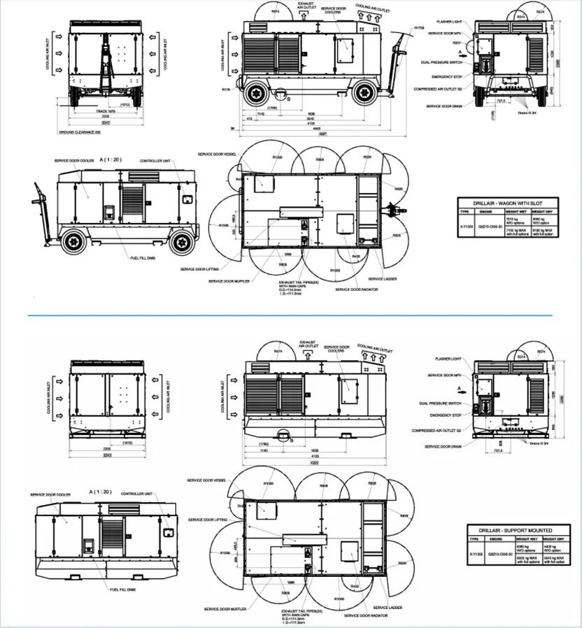
Tuoteviite

Vakiotoimitus



Atlas Copco X1300, Y1300 ja XRS 1500-20 ovat vaimennettuja, kaksivaiheisia, öljysuihkutettuja ruuvikompressoreita, joiden voimanlähteenä on nestejäähdytteinen kuusisylinterinen Cummins-dieselmoottori.

Yksikkö koostuu kahdesta erittäin tehokkaasta kompressorielementistä, dieselmoottorista, jäähdytyksestä, ilman/öljyn erotus- ja ohjausjärjestelmistä - kaikki suljettuna äänivaimennettuun, tehopinnoitettuun teräskoteloon.

Erityistä huomiota on kiinnitetty tuotteen yleiseen laatuun, käyttäjäystävällisyyteen, huollettavuuden helppouteen ja taloudelliseen käyttöön luokkansa parhaan käyttökustannusten varmistamiseksi.




Saatavilla olevat mallit

X1300  

 Kaksivaiheinen – 1250 cfm@435 psi – Cummins-dieselmoottori

Y1300

Kaksivaiheinen – 1165 cfm@508 psi – Cummins Diesel Moottori

XRS

1500-20 kaksivaiheinen – 1434 cfm@290 psi – Cummins-dieselmoottori


Ominaisuudet

• DrillAir™

• Oiltronix™ V2

• 3 % lisäpolttoainesäästöä

• Uusi öljynerottimen konsepti

• XPR

• Dynaaminen virtauksen tehostaminen

Edut

• 30 %:n lisäys porausnopeudessa ja kattaa laajan käyttöalueen yhdellä kompressorilla

• Korkea järjestelmän luotettavuus, veden muodostumisen välttäminen kompressorin öljyjärjestelmässä ja pidempi elementtien käyttöikä

• Mikään manuaalinen säätöventtiili tai paineensäätölinja ei poista niihin liittyviä jäätymisongelmia

• Säästä 1 tunti käyttöjärjestelmän vaihtamiseen

• Tarjoa laajennettu valikoima kattamaan useampia sovelluksia

• Tarjoa 10 % enemmän virtausta huuhtelun ja varren täytön aikana



Tekniset parametrit


Tekniset tiedot ja mitat


Periaatetiedot



Kompressori elementti

Kompressorin laatua voidaan mitata käytetyn kompressorielementin luotettavuudella, tehokkuudella ja kestävyydellä. Kompressorielementtien suunnittelun vuosikymmenien kokemuksella tuloksena on markkinoiden tehokkaimpien ja luotettavimpien kompressorien tuotanto.

Ilman/öljyn erotin

Ilman ja öljyn erotus saavutetaan keskipakoöljynerottimella, joka on yhdistetty suodatinelementtiin.

Suurempaan maksimikäyttöpaineeseen suunniteltu erotin on varustettu suljetulla korkeapainevaroventtiilillä, minimipaineventtiilillä, automaattisella puhallusventtiilillä ja paineensäätimellä.

Jäähdytysjärjestelmä

Moottori on varustettu nestejäähdyttimellä ja välijäähdyttimellä ja kompressori öljynjäähdyttimellä. Jäähdytysjärjestelmä on sopivasti suunniteltu jatkuvaan toimintaan ympäristöolosuhteissa 50°C asti, kun kaikki kuomuovet ovat kiinni.

Kompressorin säätöjärjestelmä

Dieselkäyttöinen Mobile Air Compressor -säätöjärjestelmä koostuu ilmansuodattimista, ilmanvastaanottimesta/öljynerottimesta, kompressorielementistä, imuventtiilikokoonpanosta imuventtiilillä ja puhallusventtiilistä; kaikkia ohjataan elektronisella säätöjärjestelmällä.

Säädettävä säätöjärjestelmä mahdollistaa kompressorin paineen ja virtauksen täyden hallinnan. Se ohjaa astian painetta ja poistovirtausta mittaamalla ilmanpainetta ja ilman lämpötilaa useista kohdista ja ohjaa ilman tuloventtiiliä, moottorin nopeutta ja puhallusventtiiliä mitattujen arvojen mukaisesti.

Taloudellisen polttoaineenkulutuksen takaa täysautomaattinen portaaton nopeudensäädin, joka mukauttaa moottorin nopeuden ilmantarpeen mukaan.

Purkauspisteet

Paineilmaa on saatavilla 1 x G2:sta.


Moottori

Cumminsin dieselmoottori

Dieselkäyttöistä liikkuvaa ilmakompressoria käyttää nestejäähdytteinen kuusisylinterinen Cummins QSZ13-C550-30 -dieselmoottori. Moottorin teho välittyy kompressorielementtiin raskaan kytkimen kautta.

Sähköjärjestelmä

X1300, Y1300 ja XRS 1500-20 on varustettu 24 voltin negatiivisella maadoitusjärjestelmällä.

Instrumentointi – XC4003

XC4003-ohjauspaneeli sijaitsee kompressorin kuomun etuosassa.

Intuitiivista Atlas Copco XC4003 -ohjainta on helppo käyttää, ja kaikki toiminnot ovat kätevästi käden ulottuvilla. Ohjain hallitsee myös moottorin ECU-käyttöjärjestelmää ja useita turvallisuusvaroituksia ja sammutuksia eri parametrien perusteella (lueteltu alla).

XC4003-ohjaimen toiminnallisuus:

• Päänäyttö

- Aluksen paine

- Polttoainetaso

- Ajotunnit

- RPM

- Air Flow CFM

• Yleiset asetukset

- DPF Stationary Regeneration

- Moottorin diagnostiikka

- Automaattinen käynnistys/lataus/pysäytys

- Kielet

- Mittayksiköt

• Mittaukset

- Polttoaineen kulutus

- Moottorin jäähdytysnesteen lämpötila

- Kompressorielementin lämpötila

- Aluksen paine

- Moottorin kuormitus

- Moottoriöljyn paine

- DPF-nokikuorma

- Polttoaineen lämpötila

- Akun jännite

- Säädöspaine

- Ladatut/kuormittamattomat tunnit

- Onnistuneet/epäonnistuneet aloitukset

- Huoltoajastimet (2)

• Toiminnalliset ohjaimet

- Esiasetettu virtaus tai käyttöpaine

• Palvelu

- Tietojen trendi

- Projektin varmuuskopiointi

• Hälytys

- Aktiiviset hälytykset

- Tapahtumalokihistoria

- Hälytyslokihistoria



Turvalaitteet

Kompressori on vakiona varustettu kompressorin ja moottorin turvalaitteilla. Laite sammuu kokonaan, jos:

- Moottoriöljyn lämpötila nousee liian korkeaksi

- Moottoriöljyn painehäviö liian alhainen

- Paineilman ulostulolämpötila menee tietyn alueen ulkopuolelle.

- Alhainen polttoainetaso

Käynnistysmoottori on myös suojattu ylikuormitukselta liiallisesta käytöstä tai moottorin käydessä.


Kori

Dieselkäyttöinen Mobile Air Compressor -kompressori toimitetaan vakiona sinkkipinnoitetulla teräskuopilla ja jauhemaalatulla maalilla, joka tarjoaa erinomaisen korroosiosuojan.

Leveät ovet tarjoavat täydellisen palvelun pääsyn kaikkiin komponentteihin.


Valmistus- ja ympäristöstandardit

X1300, Y1300 ja XRS 1500-20 on valmistettu tiukkojen ISO 9001 -määräysten mukaisesti ja täysin toteutetun ympäristönsuojelun toimesta.

ISO 14001 -standardin vaatimukset täyttävä hallintajärjestelmä. Huomiota on kiinnitetty siihen, että ympäristölle aiheutuu mahdollisimman vähän haitallisia vaikutuksia.


Toimitettu dokumentaatio

Laite toimitetaan seuraavilla asiakirjoilla ja sertifikaateilla:

- Kompressorin varaosaluettelo.

- Kompressorin ja moottorin käyttöohje.

- Koneen testaustodistus.

- Alustodistus.

Takuun kattavuus

• Katso takuutiedot tuotteen esittelystä.

• Laajennetut takuuohjelmat ovat saatavilla; ota yhteyttä paikalliseen myyntiedustajaasi saadaksesi lisätietoja.

* Huomautus: Tuotteiden jatkuvan parantamisen vuoksi tekniset tiedot voivat muuttua ilman ennakkoilmoitusta.





Hot Tags: Dieselkäyttöinen siirrettävä ilmakompressori, Kiina, valmistaja, toimittaja, tehdas

Aiheeseen liittyvä luokka

Lähetä kysely

Ole hyvä ja lähetä kyselysi alla olevalla lomakkeella. Vastaamme sinulle 24 tunnin kuluessa.
X
Käytämme evästeitä tarjotaksemme sinulle paremman selauskokemuksen, analysoidaksemme sivuston liikennettä ja mukauttaaksemme sisältöä. Käyttämällä tätä sivustoa hyväksyt evästeiden käytön. Tietosuojakäytäntö
Hylätä Hyväksyä